提供專業控制閥解決方案! 銷售熱線:021-5186 3046
上海川滬閥門有限公司
ShangHai Chuanhu Valve CO.,LTD
我們做的不僅是產品還是解決方案
川滬閥門品牌:電動球閥、電動蝶閥、氣動球閥、氣動蝶閥、電動調節閥、氣動調節閥
自力式調節閥、快速切斷閥、低溫閥門、耐腐蝕閥門、衛生級閥門、截止閥、閘閥
電動執行器、氣動執行器
蒸汽電磁閥
一、蒸汽電磁閥 產品概述
上海川滬閥門有限公司生產的蒸汽電磁閥適用于以蒸汽為加熱介質,進行溫度自動控制的執行機構。可對蒸汽加熱器、散熱器、干燥器等蒸汽設備及各類溫度自控儀。蒸汽定型機、蒸汽機、蒸汽回潮機等成套設備的鍋爐蒸汽管道進行二位式自動控制和遠程控制。廣泛應用于染化、紡織、印染、食品、醫藥、卷煙、水泥制品、石油化工、冶金等部門的自控系統。
二、蒸汽電磁閥 產品圖片
![]() |
| 蒸汽電磁閥(碳鋼法蘭連接) |
三、蒸汽電磁閥 技術參數
| 工作介質 | 蒸汽及其他腐蝕性氣體 | ||||||||||||
|---|---|---|---|---|---|---|---|---|---|---|---|---|---|
| 介質溫度℃ | ≤200 | ||||||||||||
| 公稱壓力 (MPa) | 1.6 | ||||||||||||
| 工作壓差 (MPa) | 0.05~1.6 | 0.1~1.6 | |||||||||||
| 電源電壓 | AC220V其余規格可作特殊訂貨 | ||||||||||||
| 使用壽命 | 按JB/T7352-94規定 | ||||||||||||
| 額定流量系數 (KV) | |||||||||||||
| 泄漏量 (ml/min) | 按JB/T7352-94 . F 規定 | ||||||||||||
| 公稱通徑 (mm) | 15 | 20 | 25 | 32 | 40 | 50 | 65 | 80 | 100 | 125 | 150 | ||
| 功耗(VA) | 40、30 | 30 | |||||||||||
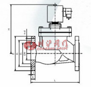
四、蒸汽電磁閥 結構圖
![]() |
五、蒸汽電磁閥 安裝尺寸
| 公稱通徑 DN | 內螺紋連接 | 法蘭連接 | |||||||||
|---|---|---|---|---|---|---|---|---|---|---|---|
| 外形尺寸 | 內螺紋 | 外形尺寸 | 法蘭尺寸 | ||||||||
| H | L | G | H | L | D | D1 | D2 | b | f | n-d | |
| 15 | 153 | 92 | 1/2 | 175 | 130 | 95 | 65 | 46 | 14 | 2 | 4-Φ14 |
| 20 | 153 | 92 | 3/4 | 180 | 150 | 105 | 75 | 56 | 16 | 2 | 4-Φ14 |
| 25 | 153 | 110 | 1 | 195 | 160 | 115 | 85 | 65 | 16 | 3 | 4-Φ14 |
| 32 | 176 | 120 | 1 1/4 | 205 | 180 | 140 | 100 | 76 | 18 | 3 | 4-Φ18 |
| 40 | 176 | 140 | 1 1/2 | 220 | 200 | 150 | 110 | 84 | 18 | 3 | 4-Φ18 |
| 50 | 192 | 162 | 2 | 235 | 230 | 165 | 125 | 99 | 20 | 3 | 4-Φ18 |
| 65 | 250 | 290 | 185 | 145 | 118 | 20 | 3 | 4-Φ18 | |||
| 80 | 260 | 310 | 200 | 160 | 132 | 20 | 3 | 8-Φ18 | |||
| 100 | 290 | 350 | 220 | 180 | 156 | 22 | 3 | 8-Φ18 | |||
| 125 | 365 | 400 | 250 | 210 | 184 | 22 | 3 | 8-Φ18 | |||
| 150 | 400 | 480 | 285 | 240 | 211 | 24 | 3 | 8-Φ22 | |||
| 200 | 416 | 600 | 340 | 295 | 266 | 24 | 3 | 12-Φ22 | |||
| 250 | 434 | 730 | 405 | 355 | 319 | 26 | 4 | 12-Φ26 | |||
| 300 | 490 | 850 | 460 | 410 | 370 | 28 | 4 | 12-Φ2 | |||
注:由于產品改進技術創新參數可能有一定變化,公司不另行通知,請咨詢公司技術部門索取新數據。
下載:上海川滬閥門有限公司-產品樣本-蒸汽電磁閥.PDF
蒸汽電磁閥鏈接:http://www.ansite.net.cn/products/kuaisuqieduanfa/zqdcf.html


















