提供專業控制閥解決方案! 銷售熱線:021-5186 3046
上海川滬閥門有限公司
ShangHai Chuanhu Valve CO.,LTD
我們做的不僅是產品還是解決方案
川滬閥門品牌:電動球閥、電動蝶閥、氣動球閥、氣動蝶閥、電動調節閥、氣動調節閥
自力式調節閥、快速切斷閥、低溫閥門、耐腐蝕閥門、衛生級閥門、截止閥、閘閥
電動執行器、氣動執行器
氣動襯氟法蘭蝶閥
一、氣動襯氟法蘭蝶閥 產品概述
上海川滬閥門有限公司生產的氣動襯氟法蘭蝶閥(亦稱耐腐蝕氣動蝶閥)是由氣動活塞式執行器及四氟密封蝶閥組成。適用于溫度≤180℃,有腐蝕性或潔凈度有一定要求工況,氣動襯氟蝶閥是在過流部件、閥體、蝶板、閥桿上采用襯里技術襯里較厚的高分子材料,防腐蝕性能優良,可適用于任何濃度的酸、堿、鹽及氧化劑、還原劑、有機溶劑等介質,氣動襯氟蝶閥是化工、石油、醫藥、食品、鋼鐵治煉、造紙、水電等系統的氣體、液體、半流體的管路和容器上作截流和調節設備使用的理想產品。全襯聚四氟乙烯(F4)和聚全氟乙丙烯(F46)氟塑料襯里蝶閥,具有耐腐蝕、無泄漏、壽命長等優點。耐腐蝕氣動蝶閥適用于濃硫酸、鹽酸、硝酸、氫氟酸、王水、各種有機酸、強酸、氧化性介質或高溫烯硫酸、高溫濃醋酸、酸堿交替及多種有機溶劑和其它強腐蝕性介質。
特點:
1.體積小、重量輕、操作輕巧、便于安裝、維修。
2、密封性能優良可靠、零泄漏,使用壽命長。
3、流量特性趨于直線,調節性能優。
4、結構簡單,開關迅速,90°旋轉啟閉。
5、可代替閘閥、截止閥、旋塞閥、膠管閥及隔膜閥等各種閥門的使用。
6、可根據用戶要求配置氣動、電動裝置,滿足遙控和程控的需要。
7、襯氟蝶閥通過合理選材和采用特殊工藝結構。更換零件襯里材質可適用于各種介質。
8.廣泛用于化工、農藥、造紙、水處理、印染等強耐腐蝕開關或調節場合。若口徑較大的耐腐蝕場合,建議選擇耐腐蝕蝶閥。
適用場景:
氣動襯氟法蘭蝶閥可適用于任何濃度的酸、堿、鹽及氧化劑、還原劑、有機溶劑等介質,氣動襯氟蝶閥是化工、石油、醫藥、食品、鋼鐵治煉、造紙、水電等系統的氣體、液體、半流體的管路和容器上作截流和調節設備使用的理想產品。
二、氣動襯氟法蘭蝶閥 產品圖片
![]() |
![]() |
| 氣動襯氟法蘭蝶閥 | 氣動襯氟法蘭蝶閥 |
三、氣動襯氟法蘭蝶閥 零部件材料
| 名稱 | 材質 |
|---|---|
| 閥體、底座 | 鑄鋼、不銹鋼、全襯氟 |
| 蝶板 | 鑄鋼、不銹鋼及特殊材料、全襯氟 |
| 密封圈 | 各種橡膠、聚四氟 |
| 襯里材料 | F46' F4、PFA、PO、PE' PP |
| 閥桿 | 20*13、不銹鋼、全襯氟 |
| 填料 | V型聚四氟乙烯填料、柔性石墨填料 |
四、氣動襯氟法蘭蝶閥 技術參數
| 閥體形式 | 直通鑄造蝶閥 |
|---|---|
| 公稱通徑 | DN50~DN500mm |
| 公稱壓力 | PN1.0. 1.6 MPa |
| 法蘭標準 | JISB220、JB/T79、ANSIB16.5-1981、GBAT9113、HG20594-97、HG20618-97等 |
| 連接形式 | 法蘭式、對夾式 |
| 閥蓋形式 | 一體式 |
| 壓蓋型式 | 壓蓋壓緊式 |
| 密封填料 | V型聚四氟乙烯填料、柔性石墨填料 |
| 閥板形式 | 垂直板式(蝶形) |
| 流量特性 | 等百分比、快開、線性 |
| 執行器型號 | GT系列、SR系列.AT系列、AW系列、TH(QGSY)系列單雙作用氣動執行器 |
| 供氣壓力 | 400700KPa |
| 氣源接口 | Gl/4\ Gl/8\ G3/8V Gl/2" |
| 環境溫度 | -30~+70oC |
| 作用形式 | 單作用執行機構:氣關式(B)--失氣時閥位開(FO):氣開式(K)--失氣時閥位關(FC) |
| 雙作用執行機構:氣關式(B)--失氣時閥位保持(FL):氣開式(K)--失氣時閥位保持(FL) | |
| 可配附件 | 定位器、電磁閥、空氣過濾減壓器、保位閥.行程幵關、閥位傳送器.手輪機構等 |
五、氣動襯氟法蘭蝶閥 執行器參數
| 執行器型號 | GT、AT、AR、AW系列單雙作用氣動執行器 |
|---|---|
| 供氣壓力 | 0.4~0.7MPa |
| 氣源接口 | G1/4"、G1/8"、G3/8"、G1/2" |
| 環境溫度 | -30~+70℃ |
| 作用形式 | 單作用執行機構:氣關式(B)--失氣時閥位開(FO);氣開式(K)--失氣時閥位關(FC) |
六、氣動襯氟法蘭蝶閥 性能規范
| 公稱通徑DN(mm) | DN50~1200 | ||||
|---|---|---|---|---|---|
| 公稱壓力 | PN(MPa) | 0.6 | 1.0 | 1.6 | 2.5 |
| 試驗壓力 | 強度試驗 | 0.9 | 1.5 | 2.4 | 3.75 |
| 密封試驗 | 0.66 | 1.1 | 1.76 | 2.75 | |
| 低壓氣密試驗 | 0.5~0.7 | ||||
| 適用介質 | 水、油(溫度≤90℃)、蒸氣、硝酸類(溫度≤200℃)、醋酸類(溫度≤200℃) | ||||
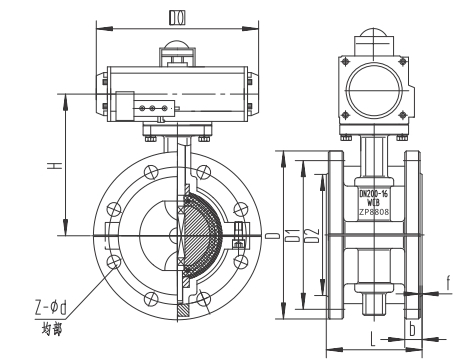
七、氣動襯氟法蘭蝶閥 結構圖
![]() |
八、氣動襯氟法蘭蝶閥 連接尺寸
| 公稱通徑DN(mm) | 50 | 65 | 80 | 100 | 125 | 150 | 200 | 250 | 300 | 350 | 400 | 450 | 500 | 600 | 700 | 800 | 900 | 1000 |
|---|---|---|---|---|---|---|---|---|---|---|---|---|---|---|---|---|---|---|
| L(法蘭式) | 108 | 112 | 114 | 127 | 140 | 140 | 152 | 165 | 178 | 190 | 216 | 222 | 229 | 267 | 292 | 318 | 330 | 410 |
| L(對夾式) | 43 | 46 | 46 | 52 | 56 | 56 | 60 | 68 | 78 | 78 | 102 | 114 | 127 | 154 | 165 | 190 | 203 | 216 |
| H 法蘭式 |
70 | 83 | 105 | 115 | 137 | 164 | 206 | 230 | 248 | 289 | 320 | 343 | 413 | 478 | 525 | 585 | 640 | |
| H 對夾式 |
70 | 83 | 105 | 115 | 137 | 164 | 206 | 230 | 248 | 289 | 320 | 343 | 413 | 478 | 525 | 585 | 640 |
注:由于產品改進技術創新參數可能有一定變化,公司不另行通知,請咨詢公司技術部門索取新數據。
下載:上海川滬閥門有限公司-產品樣本-氣動襯氟法蘭蝶閥.PDF
氣動襯氟法蘭蝶閥鏈接:http://www.ansite.net.cn/products/qidongdiefa/d641f46.html























